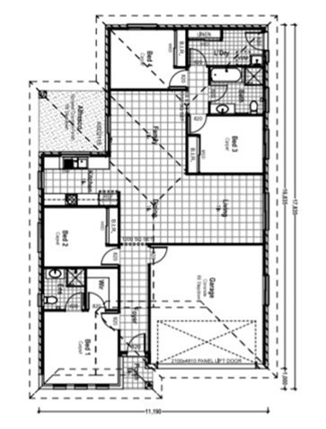
Description

SOLD

TURN KEY HOUSE & LAND PACKAGE

Home Information

Fixed site costs included
Ducted air conditioning throughout
Mirror robes
Custom vanities
Stone benchtops in kitchen and bathrooms
LED downlights throughout
Full landscaping and fencing
12 month defects liability period
25 Year Structural Guarantee






"